Floor Plans
We design every floor plan around how you actually live. Browse our layouts to explore design inspiration, material selections, and the thoughtful decisions that go into every build, because a well-designed home should work as well as it looks without costing more than it should.
The Ketelsen
The Ketelsen was designed for comfortable everyday living and effortless entertaining, proving that a smart layout can feel just as luxurious as an expensive one. The open main level connects the kitchen, dining, and living areas into one functional space, with easy access to the covered deck creating the kind of flow where family naturally gathers.
5 Bedrooms · 3 Bathrooms · 2-Car Garage · 2 Levels
Main floor master suite with walk-in closet, second bedroom, full bath, kitchen with pantry, main floor laundry with lockers, and covered porch. The basement adds three more bedrooms, a full bath, large family room, wet bar, wine cellar, and dedicated storage, with unexcavated space ready for future finishing.
The Alderleaf
The Alderleaf was designed for families who want space to gather, room to breathe, and a home that works as good as it looks. The open main level connects the great room, kitchen, and dining areas and flows out to a screened-in covered deck, creating a natural space for everyday living and entertaining.
5 Bedrooms · 3.5 Bathrooms · 3-Car Garage · 2 Levels
Main floor master suite with walk-in closet, second bedroom, full bath, powder room, den, kitchen, main floor laundry with mudroom, and covered porch. The foundation adds two more bedrooms with walk-in closets, a full bath, family room, wet bar, wine closet, dedicated gym, and storage, with unexcavated space ready for future finishing.
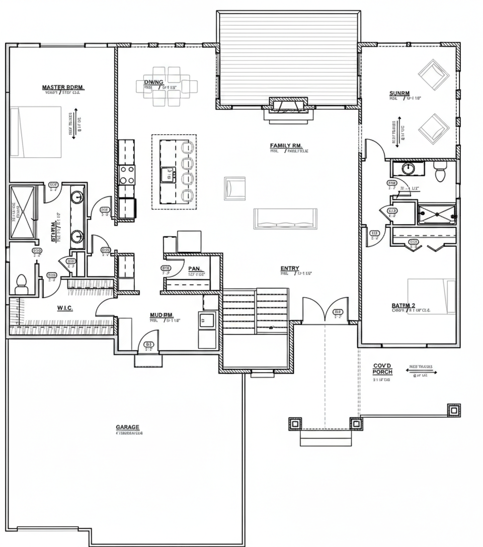
The Modern Prairie
The Modern Prairie was designed for families who want a strong architectural statement without sacrificing the warmth and functionality of everyday living. The open main level connects the family room, kitchen, and dining areas and flows out to a covered deck and sunroom, creating a natural space for gathering and relaxing in equal measure.
4 Bedrooms · 3 Bathrooms · 3-Car Garage · 2 Levels
Main floor master suite with walk-in closet and en suite bath, second bedroom, full bath, open family room and dining area, kitchen with pantry, sunroom, mudroom, deck, and covered porch. The basement adds two more bedrooms, a full bath, large family room, wet bar, exercise and flex room, and dedicated storage, with unexcavated space ready for future finishing.
Dawes Residence
The Dawes was designed for families who want a home that impresses from the outside and delivers on the inside. The open main level connects the kitchen, dining, and family room and flows out to a patio, while a sun room adds a bright, flexible space for everyday living.
5 Bedrooms · 5 Bathrooms · 2-Car Garage · 3 Levels
Main floor master suite with walk-in closet and en suite bath, bedroom and office, full bath, sun room, kitchen with pantry, laundry, and mudroom. The upper floor adds two bedrooms, two full baths, and a loft. The basement rounds out the home with a family room, bar, hidden wine room and lounge, a fifth bedroom, full bath, and storage, with unexcavated space ready for future finishing.